Property Search
8295 Palo Pinto HighwayMineral Wells, TX 76067




Mortgage Calculator
Monthly Payment (Est.)
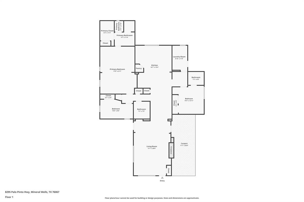
$1,592Through a gated entrance to a driveway lined with Crepe Myrtle trees sits this spacious 3-bedroom, 3-bath home on a generous .72-acre lot with both an attached and detached carport. This property offers plenty of room to spread out—indoors and out—with a large backyard, storage shed, and dog run. Enjoy a peaceful country feel with neighboring horses, cows, and scattered shade trees. Inside, the oversized living room with a wood burning fireplace provides flexible space for entertaining or relaxing. The kitchen overlooks the backyard, offering a pleasant view while you cook, and sits next to a large laundry room with drip-dry area and space for a full-size washer, dryer, and pantry storage. The split-bedroom layout adds privacy, with the primary suite on one side of the home featuring a spacious sitting area, built-in shelving, walk-in closet, and walk-in shower. On the opposite side, a second bedroom with an ensuite bath is ideal for guests or multigenerational living. Outdoor living is easy with a covered patio complete with a built-in grill—perfect for gatherings or quiet evenings. This well-designed home combines comfort, functionality, and a touch of country charm.
| 2 weeks ago | Listing updated with changes from the MLS® | |
| 2 weeks ago | Price changed to $349,000 | |
| a month ago | Listing first seen on site |
© 2020 North Texas Real Estate Information Systems. All rights reserved. Information is deemed reliable but is not guaranteed accurate by the MLS or NTREIS. The information being provided is for the consumer's personal, non-commercial use, and may not be reproduced, redistributed, or used for any purpose other than to identify prospective properties consumers may be interested in purchasing.
Last checked: 2025-11-07 11:25 AM CST

Did you know? You can invite friends and family to your search. They can join your search, rate and discuss listings with you.